Multilocale in vendita

Copertino, Via Piemonte
€ 120.000
Prezzo aggiornato
4 locali 4 locali
119 Mq 119 Mq

Multilocale in vendita

Copertino, Via Piemonte

Descrizione annuncio

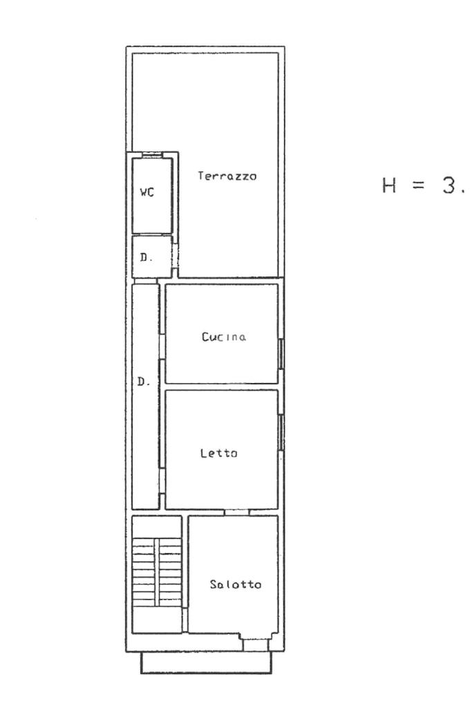
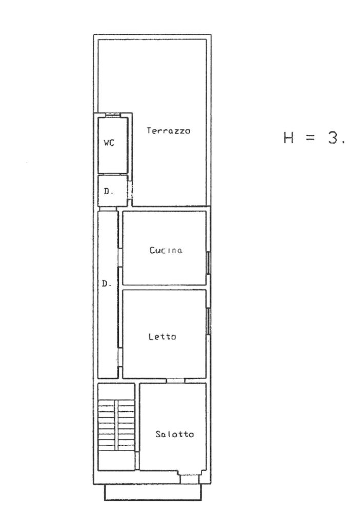
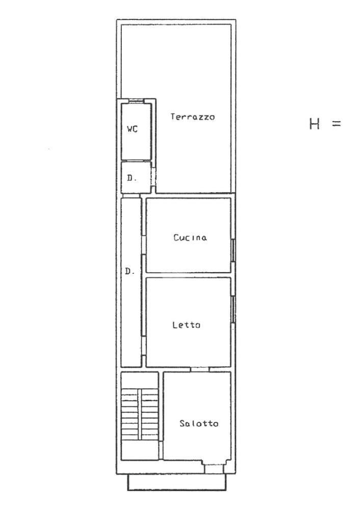
Appartamento situato al primo piano accessibile tramite un vano scala di esclusiva proprietà, che garantisce privacy e indipendenza. Nel sottoscala è presente un comodo bagno di servizio.

Salendo le scale si accede alla zona giorno, che si apre su un ampio open space che combina sala da pranzo e cucina. Questa area è luminosa e ariosa, grazie alle ampie finestre e al condizionatore che assicura un ambiente sempre confortevole.

L'appartamento dispone di un bagno principale.

La camera da letto è spaziosa e accogliente, con accesso diretto a un balcone privato, perfetto per rilassarsi all'aria aperta.

Le pareti e i soffitti dell'appartamento sono stati rinforzati con fasce di legno, aggiungendo un tocco di calore e stile rustico all'ambiente, oltre a garantire una maggiore robustezza strutturale.

Completano l'appartamento un ampio terrazzo, ideale per cene all'aperto e momenti di relax

Al piano terra, troviamo il locale commerciale, attualmente adibito a pizzeria, progettato per ottimizzare sia il servizio d'asporto che il servizio al tavolo, garantendo un'esperienza piacevole e funzionale per i clienti.

Ingresso/Servizio Asporto: All'ingresso del locale si trova un'area dedicata al servizio d'asporto, con un bancone per la consegna delle pizze e uno spazio per i clienti in attesa. Questo spazio è accogliente e ben organizzato.

Sala con Servizio al Tavolo: La sala per il servizio al tavolo è arredata con gusto, con tavoli e sedie confortevoli. L'ambiente è decorato con elementi che richiamano la tradizione culinaria italiana, creando un'atmosfera calda e invitante.

Servizi Igienici: Sono presenti due bagni separati, uno per uomini e uno per donne.

Cucina: La cucina è il cuore pulsante della pizzeria. Il grande forno a legna è essenziale per la preparazione delle pizze, affiancato da piani di lavoro in acciaio inox.

Zona Dipendenti: Per il comfort del personale, è presente una zona dedicata ai dipendenti, completa di bagno privato, spogliatoio e una piccola area relax.

Laboratorio: Adiacente alla cucina, si trova un laboratorio utilizzato per la preparazione degli ingredienti e degli impasti, ben organizzato per facilitare il lavoro del personale di cucina.

Garage: Il locale commerciale include un ampio garage, utilizzato principalmente per lo stoccaggio delle forniture e come parcheggio per i veicoli del personale.

Il locale è dotato sia di condizionatore che di ventilatore, assicurando un ambiente di lavoro confortevole.

I solai del locale sono stati rinforzati con travi IPE, garantendo maggiore sicurezza e solidità alla struttura complessiva.

Questo complesso immobiliare offre una combinazione ideale di spazi abitativi confortevoli e un locale commerciale ben attrezzato, perfetto per chi desidera gestire una pizzeria di successo direttamente sotto casa.

Mostra tutto

Nelle vicinanze

Trasporto pubblico Trasporto pubblico
Copertino
Copertino
720 m
Trasporto pubblico
1,0 Km
Ricariche auto elettriche Ricariche auto elettriche
Eneldrive Stazione FSE
670 m
Eneldrive Garibaldi
800 m
Eneldrive Campi Sportivi
2,4 Km
Scuole Scuole
Scuola dell'infanzia sezione primavera
140 m
I.T.C. Vittorio Bachelef
1,1 Km
Liceo Don Tonino Bello
1,2 Km
Farmacia Farmacia
Farmacia Nestola
920 m
Farmacia Fasano
960 m
Ospedali Ospedali
Ospedale San Giuseppe da Copertino
1,5 Km
Supermercati Supermercati
Conad city
150 m
MD discount
300 m
Negozi Negozi
Delizie del palato
320 m
Non solo pane
430 m
Bar Bar
Caffè 900
940 m
Ristoranti Ristoranti
Pinzarò
420 m
Mostra tutto

Caratteristiche

Rif.:
60938125
Piano:
1 di 2 (Piano su più livelli)
Arredamento:
Parziale
Condizionamento:
Autonomo
Ascensore:
No
Riscaldamento:
Autonomo
Mostra tutto
Prezzo Prezzo
€ 120.000
Rata mutuo Rata mutuo
€ 555 / mese
Spese annue Spese annue
€ 0
Proponi il tuo prezzoProponi il tuo prezzo

Classe Energetica

G
G
G
G
G
G
G
G
G
EP globale non rinnovabile:
3.00 kW h/m² anno
EP globale rinnovabile:
3.00 kW h/m² anno
Anno di costruzione:
1968
Riscaldamento:
Autonomo
Tipo impianto:
A radiatori
Tipo alimentazione:
Metano

Prezzo ridotto di €1 (8%%)

Ti interessa visionare l'immobile?

Fissa un appuntamento  Fissa un appuntamento

Richiedi informazioni

* Questi campi sono obbligatori

Calcola il tuo mutuo

Semplice e senza impegno
Anticipo

( % )
Mutuo

( % )

pochi semplici passi

inserisci i tuoi dati
Questionario completato
Grazie per aver richiesto un appuntamento senza impegno con un nostro Consulente del Credito e Assicurativo.

Hai inserito correttamente tutti i dati necessari e a breve riceverai una e-mail con un link da convalidare per inviare i tuoi dati.
Affiliato
Studio Nardo' Sas
Corso Galliano, 72 73048 Nardò (LE)

Il nostro staff


  • Andrea Marsano
    Affiliato

  • Marzia Nestola
    Responsabile

  • Mattia Nestola
    Responsabile

  • Benedetta Pellegrino
    Collaboratrice

  • Antonio Francesco Previderio
    Collaboratore

  • Giulia Vergaro
    Collaboratrice
Corso Galliano, 72 73048 Nardò (LE)
Zona: Nardò-S. Caterina-Porto Selvaggio-S.Isidoro
Mostra su mappa
Orari: da lunedì a venerdì: 9.00-13.00 / 16.00-20.00; sabato: 9.00-13.00
Affiliato
Studio Nardo' Sas
Corso Galliano, 72 73048 Nardò (LE)

2025 Tecnocasa Franchising S.p.A. - P. IVA 08365160152 - Via Monte Bianco 60/A 20089 Rozzano (MI). Ogni agenzia ha un proprio titolare ed è autonoma. Privacy policy | Policy utilizzo | Cookie policy