Ter. residenziale in vendita

Galatone, Sc Tardi
€ 50.000
3 locali 3 locali
3504 Mq 3504 Mq
1 bagno 1 bagno

Ter. residenziale in vendita

Galatone, Sc Tardi

Descrizione annuncio

Terreno in vendita a Galatone con fabbricato esistente e progetto approvato

In agro di Galatone, in contesto rurale tranquillo e riservato, proponiamo in vendita terreno di circa 3.500 mq sul quale insiste un vecchio fabbricato. La proprietà rappresenta un’interessante opportunità per chi desidera realizzare una nuova abitazione immersa nel verde.

Il terreno è infatti dotato di progetto approvato per la realizzazione di un’abitazione residenziale.

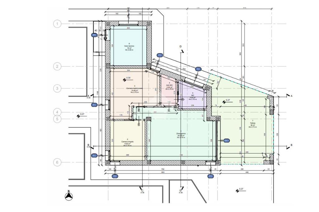
Il fabbricato progettato si sviluppa su un unico piano fuori terra. La distribuzione interna degli ambienti è stata studiata con particolare attenzione all’esposizione solare, al fine di garantire il massimo comfort abitativo.

In particolare, la zona giorno con soggiorno e angolo cottura è stata posizionata in modo da beneficiare di un’ottima illuminazione naturale, grazie a ampie vetrate che consentono una comunicazione diretta con la tettoia.

La distribuzione degli spazi interni permette una chiara separazione tra la zona giorno e la zona notte, garantendo funzionalità e privacy. L’unità abitativa è composta da zona giorno (soggiorno con angolo cottura), antibagno e bagno, camera matrimoniale e camera singola.

A completamento del progetto sono previsti un vano tecnico di 10,00 mq utili e una tettoia residenziale di 30,00 mq, perfetta per momenti di relax all’aperto.

L’architettura adottata, semplice e regolare, si inserisce armoniosamente nel paesaggio rurale circostante, richiamando nelle forme e nella tipologia costruttiva le tradizionali lamie salentine, valorizzando il contesto naturale e l’identità del territorio.

Soluzione ideale per chi cerca un terreno con progetto approvato, pronto per la realizzazione di una residenza indipendente nel cuore del Salento.

Mostra tutto

Nelle vicinanze

Scuole Scuole
Scuole
2,8 Km
IISS Enrico Medi
2,8 Km
Farmacia Farmacia
Farmacia San Nicola
2,6 Km
Bar Bar
Bar
2,5 Km
Ristoranti Ristoranti
Le Casine sull'Asso
1,1 Km
Mostra tutto

Caratteristiche

Rif.:
61161770
Piano:
1 di 1 (Piano terra con giardino)
Posti auto:
2
Camere da letto:
2
Arredamento:
Assente
Condizionamento:
Autonomo
Mostra tutto
Prezzo Prezzo
€ 50.000
Rata mutuo Rata mutuo
€ 237 / mese
Spese annue Spese annue
€ 0
Proponi il tuo prezzoProponi il tuo prezzo

Classe Energetica

Questo immobile è esente da classe energetica
Anno di costruzione:
2026
Riscaldamento:
Autonomo
Tipo impianto:
Ad aria
Tipo alimentazione:
Aria

Ti interessa visionare l'immobile?

Fissa un appuntamento  Fissa un appuntamento

Richiedi informazioni

Clicca su Leggi per aprire l'informativa
* Questi campi sono obbligatori

Calcola il tuo mutuo

Semplice e senza impegno
Anticipo

( % )
Mutuo

( % )

pochi semplici passi

inserisci i tuoi dati
Questionario completato
Grazie per aver richiesto un appuntamento senza impegno con un nostro Consulente del Credito e Assicurativo.

Hai inserito correttamente tutti i dati necessari e a breve riceverai una e-mail con un link da convalidare per inviare i tuoi dati.
Affiliato
Studio Nardo' Sas
Corso Galliano, 72 73048 Nardò (LE)

Il nostro staff


  • Andrea Marsano
    Affiliato

  • Marzia Nestola
    Responsabile

  • Mattia Nestola
    Responsabile

  • Benedetta Pellegrino
    Collaboratrice

  • Antonio Francesco Previderio
    Collaboratore

  • Giulia Vergaro
    Collaboratrice
Corso Galliano, 72 73048 Nardò (LE)
Zona: Nardò-S. Caterina-Porto Selvaggio-S.Isidoro
Mostra su mappa
Orari: da lunedì a venerdì: 9.00-13.00 / 16.00-20.00; sabato: 9.00-13.00
Affiliato
Studio Nardo' Sas
Corso Galliano, 72 73048 Nardò (LE)

2026 Tecnocasa Franchising S.p.A. - P. IVA 08365160152 - Via Monte Bianco 60/A 20089 Rozzano (MI). Ogni agenzia ha un proprio titolare ed è autonoma. Privacy policy | Policy utilizzo | Cookie policy