5 locali in vendita

Nardò, Via Antonio Galateo
€ 80.000
Prezzo aggiornato
5 locali 5 locali
110 Mq 110 Mq
2 bagni 2 bagni

5 locali in vendita

Nardò, Via Antonio Galateo

Descrizione annuncio

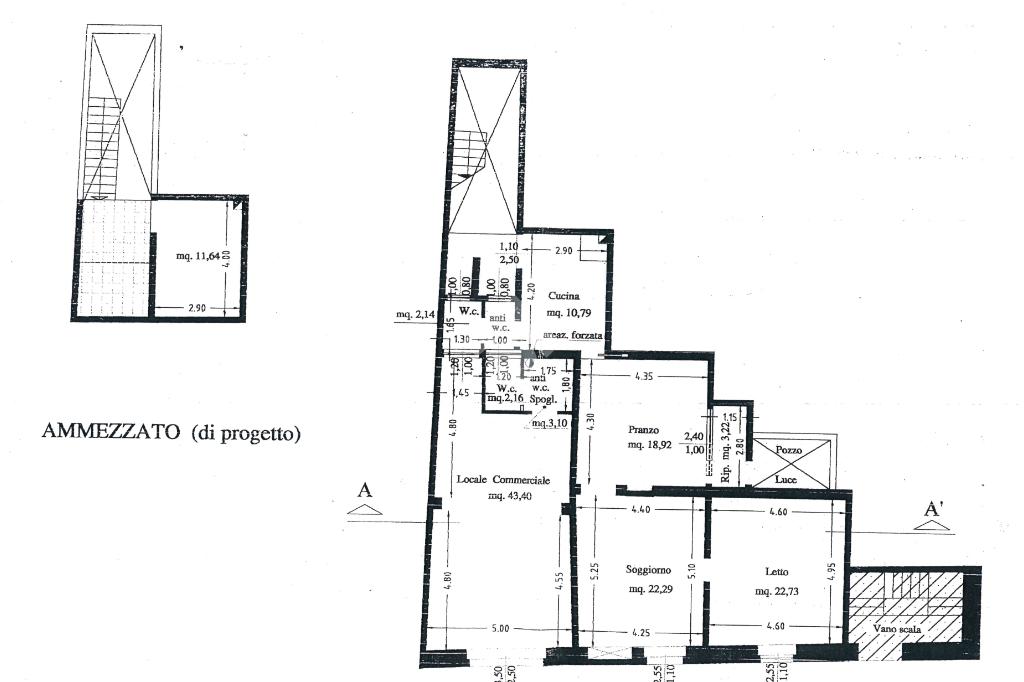
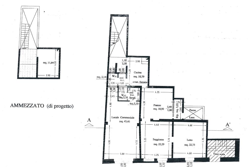
Nel cuore pulsante di Nardò, a due passi dalle meraviglie del centro storico, si apre l’opportunità perfetta per chi cerca una soluzione indipendente, comoda e ricca di potenziale. Questo appartamento al piano terra è molto più di una semplice casa: è un rifugio accogliente, pronto ad accogliere chi desidera vivere in un contesto autentico, senza rinunciare alla praticità.

Varcando l’ingresso, si viene accolti da un ampio soggiorno, perfetto per i momenti di relax o per ricevere gli amici. La sala da pranzo e il cucinotto, ben separati ma funzionali, offrono spazi comodi e ben distribuiti per vivere al meglio ogni momento della giornata. La presenza di un antibagno, un bagno, un pratico ripostiglio e una spaziosa camera matrimoniale rendono questa casa immediatamente vivibile e confortevole.

Ma ciò che rende davvero speciale questa soluzione sono i soffitti molto alti, che permettono di soppalcare l'abitazione, aggiungendo ulteriori ambienti e valorizzando ogni metro quadrato a disposizione. Due pozzi luce assicurano luminosità e ricambio d’aria naturale, elementi fondamentali per il benessere quotidiano.

Completa l’offerta, compreso nel prezzo, un locale artigianale di ben 45 mq adiacente all'immobile, con antibagno e bagno: uno spazio ideale per chi cerca un laboratorio, uno studio o un ambiente polifunzionale da personalizzare secondo le proprie esigenze.

Una soluzione unica, perfetta per chi cerca indipendenza, spazio e potenzialità a due passi dal centro. Prenota la tua visita e lasciati ispirare dal carattere autentico di questa casa.

Mostra tutto

Nelle vicinanze

Trasporto pubblico Trasporto pubblico
Nardò
Nardò
620 m
Nardò Centrale
Nardò Centrale
2,6 Km
Trasporto pubblico
210 m
Ricariche auto elettriche Ricariche auto elettriche
Stazione Nardò Città
610 m
Comune di Nardò
650 m
Scuole Scuole
British school of english
640 m
Scuole
1,2 Km
Farmacia Farmacia
Farmacia Colangelo Onorato Della Dott.ssa Boccarella Emma & Co. S.N.C.
120 m
farmacia Benegiamo Pagliula
480 m
Farmacia Manieri -Elia Dottor Sigismondo
670 m
Farmacia Manieri Elia - De Cupertinis S.N.C.
680 m
Farmacia De Benedittis Eredi
760 m
Ospedali Ospedali
Ospedale Civile Giuseppe Sambiasi
1,1 Km
Supermercati Supermercati
Lidl
860 m
Unieuro
900 m
Despar
1,2 Km
MD Discount
1,6 Km
Negozi Negozi
United Colors of Benetton
140 m
Dribling Sport
280 m
Bar Bar
Osanna
200 m
Ristoranti Ristoranti
Antica Trattoria Salandra
290 m
Jazzy City
450 m
Risto Pizza di Marulli Giovanna S.A.S.
700 m
Mostra tutto

Caratteristiche

Rif.:
61047625
Piano:
Terra di 1
Totale piani:
1
Camere da letto:
1
Arredamento:
Assente
Condizionamento:
Assente
Mostra tutto
Prezzo Prezzo
€ 80.000
Rata mutuo Rata mutuo
€ 369 / mese
Spese annue Spese annue
€ 0
Proponi il tuo prezzoProponi il tuo prezzo

Classe Energetica

G
G
G
G
G
G
G
G
G
Anno di costruzione:
1967
Riscaldamento:
Assente

Prezzo ridotto di €1 (6%%)

Ti interessa visionare l'immobile?

Fissa un appuntamento  Fissa un appuntamento

Richiedi informazioni

* Questi campi sono obbligatori

Calcola il tuo mutuo

Semplice e senza impegno
Anticipo

( % )
Mutuo

( % )

pochi semplici passi

inserisci i tuoi dati
Questionario completato
Grazie per aver richiesto un appuntamento senza impegno con un nostro Consulente del Credito e Assicurativo.

Hai inserito correttamente tutti i dati necessari e a breve riceverai una e-mail con un link da convalidare per inviare i tuoi dati.
Affiliato
Studio Nardo' Sas
Corso Galliano, 72 73048 Nardò (LE)

Il nostro staff


  • Andrea Marsano
    Affiliato

  • Marzia Nestola
    Responsabile

  • Mattia Nestola
    Responsabile

  • Benedetta Pellegrino
    Collaboratrice

  • Antonio Francesco Previderio
    Collaboratore

  • Giulia Vergaro
    Collaboratrice
Corso Galliano, 72 73048 Nardò (LE)
Zona: Nardò-S. Caterina-Porto Selvaggio-S.Isidoro
Mostra su mappa
Orari: da lunedì a venerdì: 9.00-13.00 / 16.00-20.00; sabato: 9.00-13.00
Affiliato
Studio Nardo' Sas
Corso Galliano, 72 73048 Nardò (LE)

2025 Tecnocasa Franchising S.p.A. - P. IVA 08365160152 - Via Monte Bianco 60/A 20089 Rozzano (MI). Ogni agenzia ha un proprio titolare ed è autonoma. Privacy policy | Policy utilizzo | Cookie policy