Quadrilocale in vendita

Nardò, Via G. Zuccaro
€ 130.000
2 locali 2 locali
60 Mq 60 Mq
2 bagni 2 bagni

Quadrilocale in vendita

Nardò, Via G. Zuccaro

Descrizione annuncio

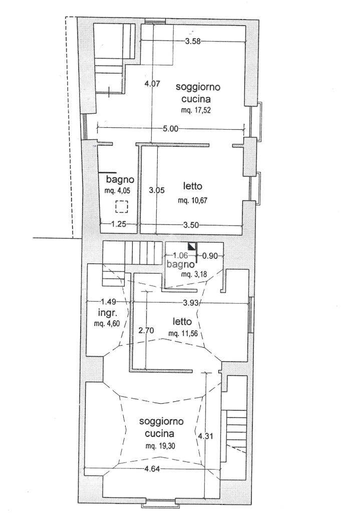
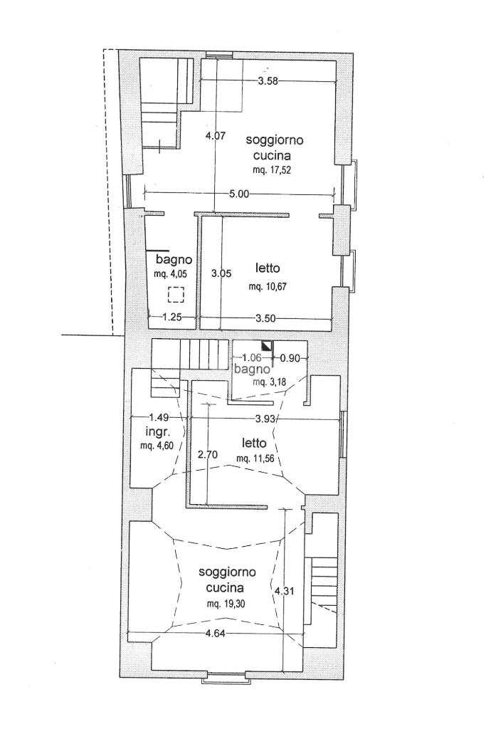
Nel cuore del centro storico di Nardò, in una delle zone più suggestive e ricche di fascino della città, proponiamo in vendita un appartamento indipendente, perfetto sia come abitazione principale che come investimento. L’immobile, curato e funzionale, offre ambienti accoglienti e ben distribuiti: una luminosa cucina open space con divano letto, una camera da letto confortevole, un bagno moderno e una stanza aggiuntiva ideale da adibire a ripostiglio o lavanderia.

La proprietà vanta inoltre un’area solare di esclusiva pertinenza, uno spazio prezioso che può essere trasformato in una splendida zona relax dove trascorrere momenti di tranquillità o organizzare serate con amici e familiari, godendo di una vista mozzafiato su uno scorcio della splendida Chiesa di Santa Chiara. Anche dal caratteristico balconcino dell’appartamento è possibile ammirare questo panorama suggestivo, che dona un fascino unico alla casa.

La posizione strategica, a pochi passi da ristoranti tipici, botteghe artigiane, servizi e dalle principali attrazioni storiche della città, rende questa proposta ideale per chi desidera vivere immerso nella storia e nella bellezza del centro storico oppure per chi cerca una soluzione da mettere a reddito, perfetta per il mercato delle case vacanze.

Un’opportunità imperdibile per acquistare un appartamento nel cuore di Nardò, dove charme, comfort e una vista incantevole si fondono in un’unica soluzione.

Mostra tutto

Nelle vicinanze

Trasporto pubblico Trasporto pubblico
Nardò
Nardò
860 m
Nardò Centrale
Nardò Centrale
2,3 Km
Trasporto pubblico
590 m
Ricariche auto elettriche Ricariche auto elettriche
Comune di Nardò
180 m
Stazione Nardò Città
850 m
Scuole Scuole
British school of english
520 m
Scuole
740 m
Farmacia Farmacia
farmacia Benegiamo Pagliula
150 m
Farmacia Manieri Elia - De Cupertinis S.N.C.
320 m
Farmacia Manieri -Elia Dottor Sigismondo
340 m
Farmacia Colangelo Onorato Della Dott.ssa Boccarella Emma & Co. S.N.C.
370 m
Farmacia De Benedittis Eredi
460 m
Ospedali Ospedali
Ospedale Civile Giuseppe Sambiasi
700 m
Supermercati Supermercati
Unieuro
490 m
Despar
770 m
Lidl
1,1 Km
MD Discount
1,3 Km
Negozi Negozi
Dribling Sport
310 m
United Colors of Benetton
350 m
Bar Bar
Osanna
280 m
Ristoranti Ristoranti
Jazzy City
160 m
Antica Trattoria Salandra
270 m
Risto Pizza di Marulli Giovanna S.A.S.
330 m
Mostra tutto

Caratteristiche

Rif.:
61114556
Piano:
1 di 1 (ultimo Piano)
Balconi:
1
Terrazzi:
1
Camere da letto:
2
Arredamento:
Completo
Mostra tutto
Prezzo Prezzo
€ 130.000
Rata mutuo Rata mutuo
€ 613 / mese
Spese annue Spese annue
€ 0
Proponi il tuo prezzoProponi il tuo prezzo
Immobile valutato con T·Valuta

Classe Energetica

G
G
G
G
G
G
G
G
G
Anno di costruzione:
1960
Riscaldamento:
Autonomo
Tipo impianto:
A stufa
Tipo alimentazione:
Metano

Ti interessa visionare l'immobile?

Fissa un appuntamento  Fissa un appuntamento

Richiedi informazioni

Clicca su Leggi per aprire l'informativa
* Questi campi sono obbligatori

Calcola il tuo mutuo

Semplice e senza impegno
Anticipo

( % )
Mutuo

( % )

pochi semplici passi

inserisci i tuoi dati
Questionario completato
Grazie per aver richiesto un appuntamento senza impegno con un nostro Consulente del Credito e Assicurativo.

Hai inserito correttamente tutti i dati necessari e a breve riceverai una e-mail con un link da convalidare per inviare i tuoi dati.
Affiliato
Studio Nardo' Sas
Corso Galliano, 72 73048 Nardò (LE)

Il nostro staff


  • Andrea Marsano
    Affiliato

  • Marzia Nestola
    Responsabile

  • Mattia Nestola
    Responsabile

  • Benedetta Pellegrino
    Collaboratrice

  • Antonio Francesco Previderio
    Collaboratore

  • Giulia Vergaro
    Collaboratrice
Corso Galliano, 72 73048 Nardò (LE)
Zona: Nardò-S. Caterina-Porto Selvaggio-S.Isidoro
Mostra su mappa
Orari: da lunedì a venerdì: 9.00-13.00 / 16.00-20.00; sabato: 9.00-13.00
Affiliato
Studio Nardo' Sas
Corso Galliano, 72 73048 Nardò (LE)

2026 Tecnocasa Franchising S.p.A. - P. IVA 08365160152 - Via Monte Bianco 60/A 20089 Rozzano (MI). Ogni agenzia ha un proprio titolare ed è autonoma. Privacy policy | Policy utilizzo | Cookie policy