Bilocale in vendita

Nardò, Via Fiume
€ 68.000
2 locali 2 locali
80 Mq 80 Mq
1 bagno 1 bagno

Bilocale in vendita

Nardò, Via Fiume

Descrizione annuncio

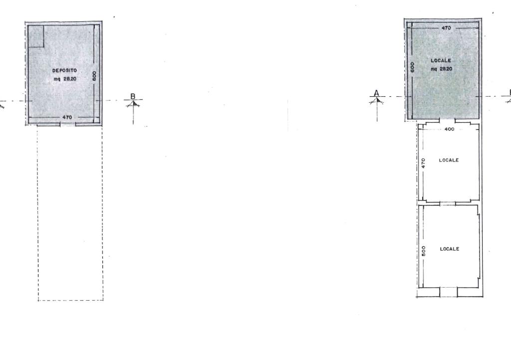
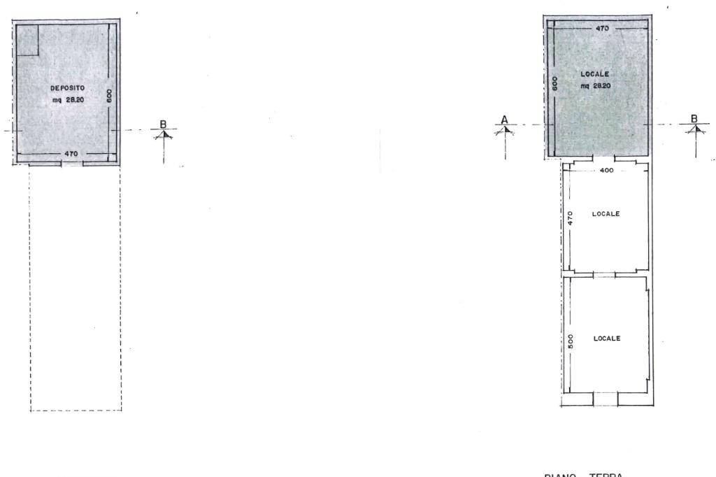
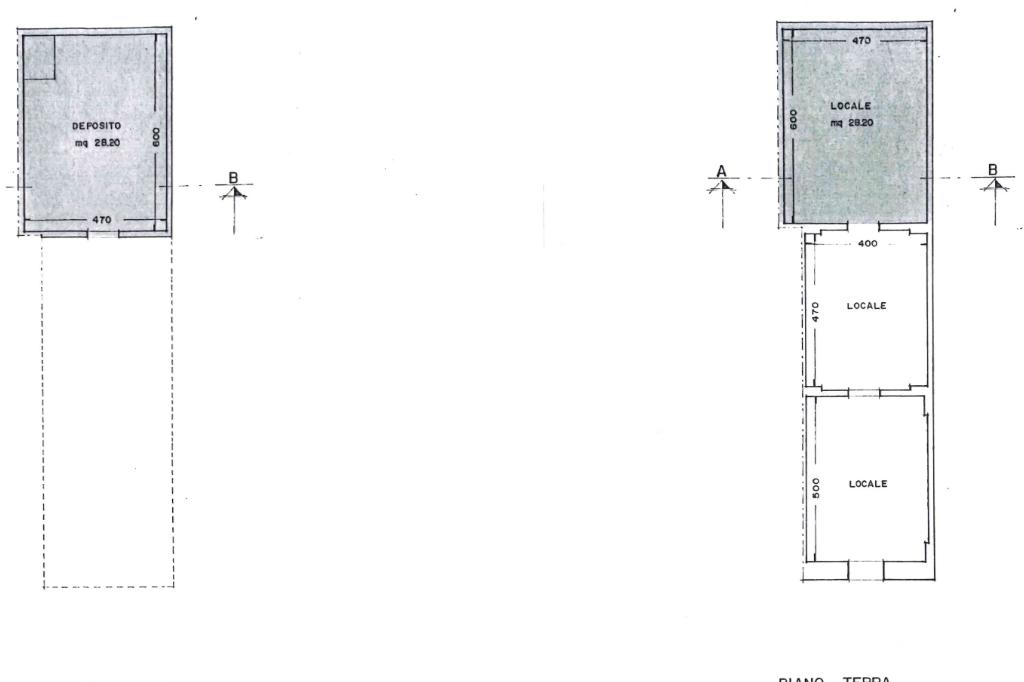
A Nardò, in una zona semicentrale strategica, ben servita e facilmente raggiungibile, proponiamo in vendita un locale commerciale al piano terra che unisce fascino storico e funzionalità moderna. L’immobile si apre con un ampio e luminoso ambiente d’ingresso, ideale per accogliere clienti o organizzare al meglio gli spazi della propria attività. Completa la proprietà un pratico bagno dotato di doccia e un comodo piano ammezzato, perfetto come deposito o ufficio. Le splendide volte a stella, autentico segno distintivo dell’architettura salentina, conferiscono al locale un’eleganza senza tempo, rendendolo una soluzione ideale per chi desidera avviare o ampliare la propria attività in un contesto ricco di carattere e visibilità. Un’opportunità unica per trasformare il tuo progetto imprenditoriale in realtà nel cuore di Nardò.

Mostra tutto

Nelle vicinanze

Trasporto pubblico Trasporto pubblico
Nardò
Nardò
960 m
Nardò Centrale
Nardò Centrale
1,9 Km
Trasporto pubblico
820 m
Ricariche auto elettriche Ricariche auto elettriche
Comune di Nardò
250 m
Stazione Nardò Città
960 m
Scuole Scuole
Scuole
710 m
British school of english
820 m
Farmacia Farmacia
Farmacia De Benedittis Eredi
230 m
farmacia Benegiamo Pagliula
470 m
Farmacia Manieri Elia - De Cupertinis S.N.C.
520 m
Farmacia Manieri -Elia Dottor Sigismondo
560 m
Farmacia di Orlando Salvatore
650 m
Ospedali Ospedali
Ospedale Civile Giuseppe Sambiasi
360 m
Supermercati Supermercati
Unieuro
140 m
Despar
430 m
MD Discount
930 m
Lidl
1,5 Km
Negozi Negozi
Dribling Sport
530 m
United Colors of Benetton
630 m
Bar Bar
Osanna
570 m
Ristoranti Ristoranti
Jazzy City
320 m
Risto Pizza di Marulli Giovanna S.A.S.
500 m
Antica Trattoria Salandra
610 m
Mostra tutto

Caratteristiche

Rif.:
61125302
Piano:
1 di 2 (Piano terra)
Arredamento:
Assente
Condizionamento:
Assente
Ascensore:
No
Riscaldamento:
Assente
Mostra tutto
Prezzo Prezzo
€ 68.000
Rata mutuo Rata mutuo
€ 321 / mese
Spese annue Spese annue
€ 0
Proponi il tuo prezzoProponi il tuo prezzo

Altre caratteristiche

Classe Energetica

G
G
G
G
G
G
G
G
G
Anno di costruzione:
1960
Riscaldamento:
Assente

Ti interessa visionare l'immobile?

Fissa un appuntamento  Fissa un appuntamento

Richiedi informazioni

Clicca su Leggi per aprire l'informativa
* Questi campi sono obbligatori

Calcola il tuo mutuo

Semplice e senza impegno
Anticipo

( % )
Mutuo

( % )

pochi semplici passi

inserisci i tuoi dati
Questionario completato
Grazie per aver richiesto un appuntamento senza impegno con un nostro Consulente del Credito e Assicurativo.

Hai inserito correttamente tutti i dati necessari e a breve riceverai una e-mail con un link da convalidare per inviare i tuoi dati.
Affiliato
Studio Nardo' Sas
Corso Galliano, 72 73048 Nardò (LE)

Il nostro staff


  • Andrea Marsano
    Affiliato

  • Marzia Nestola
    Responsabile

  • Mattia Nestola
    Responsabile

  • Benedetta Pellegrino
    Collaboratrice

  • Antonio Francesco Previderio
    Collaboratore

  • Giulia Vergaro
    Collaboratrice
Corso Galliano, 72 73048 Nardò (LE)
Zona: Nardò-S. Caterina-Porto Selvaggio-S.Isidoro
Mostra su mappa
Orari: da lunedì a venerdì: 9.00-13.00 / 16.00-20.00; sabato: 9.00-13.00
Affiliato
Studio Nardo' Sas
Corso Galliano, 72 73048 Nardò (LE)

2026 Tecnocasa Franchising S.p.A. - P. IVA 08365160152 - Via Monte Bianco 60/A 20089 Rozzano (MI). Ogni agenzia ha un proprio titolare ed è autonoma. Privacy policy | Policy utilizzo | Cookie policy